Watch Video
Photos

Tauhara

3 Bedrooms1 BathroomID TPU216569

A home with heart - ready for its next chapter

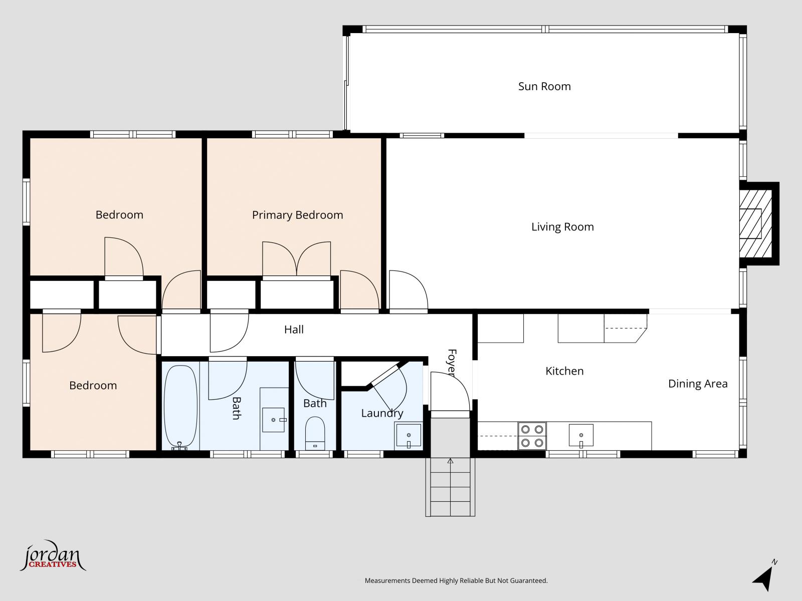
Positioned on a north-facing, well-established section, this beautiful three-bedroom brick home offers warmth, space, and a sense of history that's hard to replicate, having been cherished by the same family for three generations.

A beautiful family kitchen that connects seamlessly to the dining, and a standout lounge room featuring a sunroom that flows to the front garden. Large windows flood the space with natural light, while the woodburner fireplace and air conditioning ensure year-round comfort. Recently repainted throughout, the home also features custom-made curtains and brand-new carpet, giving it a fresh, move-in-ready feel.

Three well-proportioned bedrooms are complemented by a modern family bathroom, with a separate WC. To complete the family-friendly layout, there is a dedicated laundry.

Outside, the private, fenced section is ideal for families or relaxed outdoor living. Being directly next to a playground adds another layer of appeal for young families, while investors will appreciate the strong fundamentals and long-term potential.

Positioned within walking distance to local shops and schools, 21a Brice Street offers the perfect blend of comfort and convenience.

Beat the rush and book a private viewing with me today, or come and visit my open homes. Don't miss out on this fantastic opportunity!
CHATTELS  Fixed floor coverings   |   Light fittings   |   Drapes   |   Rangehood   |   Smoke detector(s)   |   Heated towel rail(s)   |   Garden Shed   |   Clothesline   |   Electric Stove   |   Irrigation System   |   Heat Pump and Remote   |   Letterbox   |   Mirrors   |   Satellite Dish   |   Security Lighting
Features
Area | 123.00m2Rates | $3,863.60 paRegional rates | $360.55 paLV | $290,000RV | $620,000
PRINT ENQUIRE NOW

Shelley McKenzie

M  021 116 0779  P  07 595 8994

Enquire Now










ASAP  0-2 months  3-6 months 
Yes  No 













Privacy Statement




Property Brokers Ltd MREINZ acknowledges and complies with the provisions of the Privacy Act 1993 and its amendments. In particular Property Brokers policy covers the following specific points relevant to this topic and this website:


Any client information you provide to Property Brokers will be used only for the purpose for which it is given and will not be passed on to any third party except in accordance with the law, or with specific consent.


In the main, this will be to facilitate company communication with you in order to better meet your real estate objectives and expectations.


Information provided by you will remain confidential to Property Brokers Real Estate Ltd MREINZ. This particularly applies to your reasons for selling which we regard and treat as a personal and private matter.


Any information divulged by you to any other website linked to the Property Brokers website is given at your discretion alone, and Property Brokers takes no responsibility for any disclosures that might result.


Information provided on this website is copyrighted to Property Brokers and may be accessed, downloaded and used for personal use only. The material must not be modified, copied or reproduced for gain or commercial use without the consent in writing of Property Brokers Real Estate Ltd MREINZ.


 




Google disclaimer


This website uses Google Analytics to help analyse how users use the site.


The tool uses "cookies," which are text files placed on your computer, to collect standard Internet log information and visitor behaviour information in an anonymous form.


The information generated by the cookie about your use of the website (including your IP address) is transmitted to Google. This information is then used to evaluate visitors use of this website and to compile statistical reports on website activity.


We will never (and will not allow any third party to) use the statistical analytics tool to track or to collect any Personally Identifiable Information of visitors to our site. Google will not associate your IP address with any other data held by Google. Neither we nor Google will link, or seek to link, an IP address with the identity of a computer user.


You may refuse the use of cookies by selecting the appropriate settings on your browser, however please note that if you do this you may not be able to use the full functionality of this website.


By using this website, you consent to the processing of data about you by Google in the manner and for the purposes set out above.


This website uses Google AdWords


This website uses the Google AdWords remarketing service to advertise on third party websites (including Google) to previous visitors to our site. It could mean that we advertise to previous visitors who havent completed a task on our site, for example using the contact form to make an enquiry. This could be in the form of an advertisement on the Google search results page, or a site in the Google Display Network. Third-party vendors, including Google, use cookies to serve ads based on someones past visits to the [CLIENT NAME] website. Of course, any data collected will be used in accordance with our own privacy policy and Googles privacy policy.


You can set preferences for how Google advertises to you using the Google Ad Preferences page, and if you want to you can
opt out of interest-based advertising entirely by cookie settings or
permanently using a browser plugin.


Shelley McKenzie
Rapid SSL Site Seal
Similar Listings
6 Kaihua Road
Nukuhau
OPEN HOME:  Sun 22nd Mar 2026 2.15pm - 2.45pm

Originally a family home, this property now presents a great opportunity for holiday makers, first-home buyers, or investors looking for a practical and welcoming ...

3 Bedrooms1 Bathroom
Deadline Sale
Unit 1, 28 Rawhiti Street
Taupo

Positioned just moments from the town centre, this warm and inviting home delivers comfort, practicality, and easy living in a highly convenient location ...

2 Bedrooms1 Bathroom2 Car-parking
By Negotiation
35B Richmond Avenue
Richmond Heights

Are you searching for your first home, a rental investment, or the perfect holiday retreat? Welcome to 35B Richmond Avenue. A freshly renovated split-floor home ...

3 Bedrooms1 Bathroom1 Garage
By Negotiation
Unit 2, 26 Hammersmith Street
Richmond Heights
OPEN HOME:  Sun 22nd Mar 2026 10.30am - 11.00am

Simply gorgeous! Perfect for downsizing, investors, holiday makers or those wanting a simple lifestyle in a nice neighbourhood. Set on a well-established section ...

2 Bedrooms1 Bathroom
By Negotiation